Verkocht
Hoofdfoto
Foto 2
Foto
Foto 3
Foto 4
Verkocht

van Lennepstraat 13 1702 EC, Heerhugowaard

€ 375.000,- k.k.

Omschrijving

Volledig gemoderniseerde tussenwoning met erker, veranda en zonnepanelen
Aan de Van Lennepstraat 13 in Heerhugowaard mogen wij deze tot in de puntjes verzorgde tussenwoning aanbieden. De afgelopen jaren is werkelijk alles aangepakt: van de gevel en het dak tot aan de keuken, badkamer, vloeren en installaties. Het resultaat? Een instapklare woning met een eigentijdse afwerking, sfeervolle details, 10 zonnepanelen en een diepe achtertuin met veranda, schuur en overkapping. Ideaal voor wie op zoek is naar comfort, duurzaamheid én karakter!

INDELING:
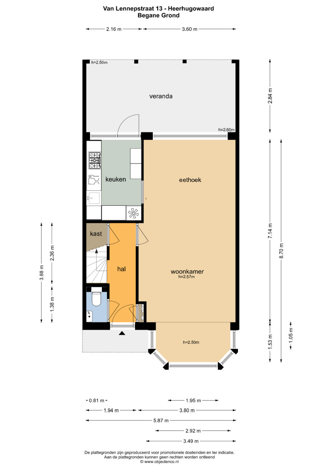
Begane grond:
Via de voortuin en de charmante erker aan de voorzijde bereik je de entree van de woning. In de hal vind je het moderne toilet en de vernieuwde meterkast. De woonkamer is licht en ruim, met een strak gestuukt plafond, behang op de muren en een schuifdeur naar de keuken. De vloer is voorzien van vloerverwarming en PVC.
De keuken is modern uitgevoerd met een kunststof werkblad, grijze kastjes, een losstaande koel-/vriescombinatie (ter overname), 4-pits kookplaat, heteluchtoven, vaatwasser en volop kastruimte. Aan de achterzijde is er een grote raampartij richting de tuin, waardoor het geheel heerlijk licht aanvoelt.

Eerste verdieping:
Op de eerste verdieping bevinden zich drie slaapkamers, alle voorzien van een PVC vloer en nette wandafwerking. Slaapkamer 1 is momenteel in gebruik als kledingkamer. Slaapkamer 2 is netjes en voorzien van een zonnescherm. Slaapkamer 3 is eveneens keurig afgewerkt en een vernieuwd kozijn en raam.
De moderne badkamer is voorzien van een ruime inloopdouche, wastafel met meubel, toilet, een designradiator én een infraroodpaneel – comfortabel en stijlvol tegelijk.

Zolderverdieping:
Via een vaste trap bereik je de voorzolder, waar zich de opstelling van de cv-ketel, de wasmachineaansluiting en een dakraam bevinden. De zolderkamer is goed geïsoleerd met PIR-platen en deels extra na-geïsoleerd. Hier is een fijne vierde slaapkamer gerealiseerd met veel bergruimte en twee dakramen. Een echte plus!

Buitenruimte:
De achtertuin is opnieuw aangelegd en deels bestraat. Je vindt hier een sfeervolle veranda, een royale stenen schuur met een brede poort én een overkapping eraan vast – ideaal voor fietsen, opslag of als loungehoek. De tuin is keurig verzorgd en gelegen op het zuidwesten, wat zorgt voor fijne middag- en avondzon.

BIJZONDERHEDEN:
- Tussenwoning met erker aan rustige straat
- Volledig gemoderniseerd tussen 2021 en 2025
- Woonoppervlakte ca. [X] m² (in te vullen)
- Nieuwe vloer met vloerverwarming begane grond (mei 2023)
- Toilet begane grond vernieuwd (februari 2022)
- Keuken vernieuwd (mei 2024)
- Tuin opnieuw aangelegd (augustus 2021 t/m maart 2022)
- Veranda geplaatst (juli 2022)
- Nieuwe badkamer (juli 2021)
- Nieuw raam en kozijn slaapkamer voorzijde (maart 2023)
- Rolluik slaapkamer achterzijde geplaatst (juni 2023)
- Nieuwe PVC vloer bovenverdieping (december 2024)
- Wanden zolder en slaapkamer geïsoleerd (december 2024)
- 10 zonnepanelen geplaatst (november 2022)
- Nieuwe cv-ketel Remeha (juni 2023)
- Vernieuwd en verlengd dak erker (augustus 2023)
- Gevel gereinigd, opnieuw gevoegd en geïmpregneerd (april 2025)
- Dakgoten voor en achter vernieuwd (2022)
- Royale schuur met brede poort en overkapping

LOCATIE:
De woning ligt in een kindvriendelijke buurt met scholen, speeltuinen, winkelcentrum, sportvoorzieningen en openbaar vervoer op korte afstand. De Van Lennepstraat is rustig en toch centraal gelegen, met goede ontsluiting richting Alkmaar, de randweg en het NS-station.

Nieuwsgierig geworden?
Deze woning is écht instapklaar. Maak snel een afspraak en ervaar zelf de ruimte, het comfort en de afwerking van Van Lennepstraat 13!

Kenmerken

Algemeen

  • statusVerkocht
  • Koopprijs€ 375.000,- k.k.
  • AanvaardingIn overleg

Bouwvorm

  • Soort objectWoonhuis
  • Soort woningEengezinswoning
  • Type woningTussenwoning
  • Bouwjaar1970
  • BouwvormBestaande bouw
  • LiggingenIn woonwijk

Indeling

  • Woonoppervlakte107 m2
  • Perceeloppervlakte168 m2
  • Inhoud382 m3
  • Aantal kamers5
  • Aantal slaapkamers4
  • Aantal badkamers1

Energie

  • EnergieklasseC
  • VerwarmingCV ketel, Vloerverwarming gedeeltelijk
  • C.V.-KetelRemeha
  • Bouwjaar C.V.-Ketel2023
  • WarmwaterCV ketel
  • IsolatieDakisolatie, Muurisolatie, Dubbelglas
  • CombiketelJa
  • BrandstofGas
  • EigendomEigendom

Buitenruimte

  • TuinAchtertuin, Voortuin
  • HoofdtuinAchtertuin
  • Oppervlakte83 m2
  • Ligging hoofdtuinZuidwest
  • AchteromJa
  • Kwaliteit tuinVerzorgd

Bergruimte

  • Schuur / BergingVrijstaand steen
  • Totaal aantal1

Parkeergelegenheid

  • Parkeer faciliteitenOpenbaar parkeren
  • GarageGeen garage

Dak

  • Soort dakZadeldak
  • Materiaal dakPannen, Bitumineuze Dakbedekking

Overig

  • Permanente bewoningJa
  • Onderhoud binnenGoed
  • Onderhoud buitenGoed
  • Huidig gebruikWoonruimte
  • Huidige bestemmingWoonruimte

Van ’t Riet De-Makelaar Heerhugowaard

Telefonisch beschikbaar tot
Maandag tot vrijdag: 09:00 - 17:30
Zaterdag: 09:00 - 15:30
Zondag: gesloten

Neem contact met ons op

Video

360° afbeeldingen