Verkocht
Hoofdfoto
Foto
Foto 2
Foto 3
Foto 4
Verkocht

Herenweg 13 1715 EG, Spanbroek

€ 300.000,- k.k.

Omschrijving

Leuke tussenwoning met volop mogelijkheden in hartje Spanbroek!
Ben jij op zoek naar een fijne gezinswoning die je helemaal naar je eigen smaak kunt afwerken? Dan zou de Herenweg 13 zomaar jouw nieuwe thuis kunnen zijn! Deze woning biedt een lichte woonkamer, drie slaapkamers, een ruime bergzolder met mogelijkheden om hier woonruimte van te maken en een tuin met vrij uitzicht aan de achterzijde. Voeg daar de centrale ligging bij, met alle voorzieningen en sportmogelijkheden in de buurt en je hebt de perfecte basis om hier jouw droomplek te creëren. Kom je snel langs voor een vrijblijvende bezichtiging? Wij vertellen je graag meer!

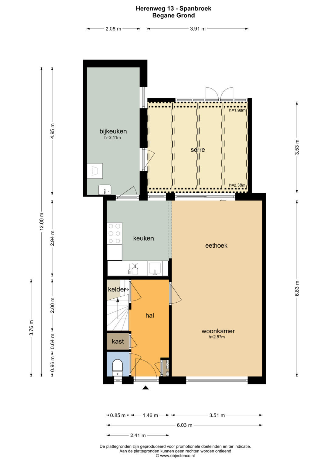
Begane grond:
Op de begane grond kom je binnen via de hal met meterkast, toilet, trapkast en trapopgang. Vanuit hier stap je de lichte woonkamer in. Aan de achterzijde vind je de tuingerichte keuken. Via de keuken heb je toegang tot de bijkeuken. Hier vind je de wasmachineaansluiting. Aan de woning is een overkapping geplaatst waardoor je ook met minder weer lekker buiten kunt zitten. De achtertuin ligt op het noordwesten, heeft een achterom en grenst aan een groenstrook, waardoor je veel privacy hebt. De woning beschikt zowel aan de voor- als achterzijde over rolluiken.

Eerste verdieping:
Op de eerste verdieping zijn drie ruime slaapkamers en de badkamer aanwezig. De verdieping is afgewerkt met deels laminaat, zeil en tapijt. De badkamer is voorzien van een douchehoek, wastafel en radiator.

Tweede verdieping:
Doormiddel van de vaste trap bereik je de tweede verdieping. Nu in gebruik als bergzolder met de CV-installatie (2025). Hier ligt een mooie kans: met een dakkapel kun je een volwaardige vierde slaapkamer creëren.

De woning beschikt over houten vloeren op zowel de begane grond als de verdiepingen. Hoewel de woning wat aandacht nodig heeft, biedt dit juist de mogelijkheid om alles naar eigen wens en smaak aan te pakken.

Ligging
De woning ligt centraal in Spanbroek met alle dagelijkse voorzieningen binnen handbereik. Supermarkt, drogist, HEMA, Action, bakker en slager vind je op loopafstand en ook een basisschool ligt letterlijk om de hoek. Voor sportliefhebbers zijn er binnen 10 minuten fietsen volop mogelijkheden: hockey, voetbal, handbal en een fitnesscentra. Bovendien zijn de uitvalswegen richting Hoorn, Heerhugowaard en de A7 richting Amsterdam snel bereikbaar, waardoor je een uitstekende verbinding hebt met de regio.

BIJZONDERHEDEN
-Vaste trap naar de bergzolder. Mogelijkheden om hier met een dakkapel woonruimte van te maken;
-Rolluiken zowel aan de voor- als aan de achterzijde;
-Centraal gelegen met voorzieningen en scholen om de hoek;
-Energielabel D;
-Oplevering in overleg.

Zorgeloos een woning aankopen? Een NVM-aankoopmakelaar komt op voor jouw belang en bespaart je tijd, geld en zorgen!

Kenmerken

Algemeen

  • statusVerkocht
  • Koopprijs€ 300.000,- k.k.
  • AanvaardingIn overleg

Bouwvorm

  • Soort objectWoonhuis
  • Soort woningEengezinswoning
  • Type woningTussenwoning
  • Bouwjaar1965
  • BouwvormBestaande bouw
  • LiggingenIn woonwijk

Indeling

  • Woonoppervlakte93 m2
  • Perceeloppervlakte158 m2
  • Inhoud379 m3
  • Aantal kamers4
  • Aantal slaapkamers3
  • Aantal badkamers1

Energie

  • EnergieklasseD
  • VerwarmingCV ketel
  • Bouwjaar C.V.-Ketel2025
  • WarmwaterCV ketel
  • IsolatieGedeeltelijk dubbelglas
  • CombiketelJa
  • BrandstofGas
  • EigendomEigendom

Buitenruimte

  • TuinAchtertuin, Voortuin
  • HoofdtuinAchtertuin
  • Oppervlakte48 m2
  • Ligging hoofdtuinNoordwest
  • AchteromJa
  • Kwaliteit tuinNormaal

Bergruimte

  • Schuur / BergingVrijstaand hout
  • Totaal aantal1

Parkeergelegenheid

  • Parkeer faciliteitenOpenbaar parkeren
  • GarageGeen garage

Dak

  • Soort dakZadeldak
  • Materiaal dakPannen

Overig

  • Permanente bewoningJa
  • Onderhoud binnenRedelijk
  • Onderhoud buitenRedelijk
  • Huidig gebruikWoonruimte
  • Huidige bestemmingWoonruimte

Van ’t Riet De-Makelaar Hoorn

Telefonisch beschikbaar tot
Maandag tot vrijdag: 09:00 - 17:30
Zaterdag: 09:00 - 15:30
Zondag: gesloten

Neem contact met ons op

Video

360° afbeeldingen